| ID # | H6305862 |
| الوصف | 5 غرفة نوم ، 4 حمام ، 1 نصف حمام ، آلة غسل الصحون ، الغسالة ، آلة التجفيف ، كراج ، مكيف هواء ، مساحة الأرض: 0.25 فدان ، 4578 ft2 قدم مربع ، 425 متر مربع |
| سنة البناء | 2024 |
| الضرائب (سنويًا) | $1 |
| نوع الحرارة | هواء ساخن Hot air |
| مكيف هواء | تكييف هواء مركزي Central Air |
| القبو | قبو كامل Full basement |
| نوع الكراج' | كراج ملحق Attached |
![]() |
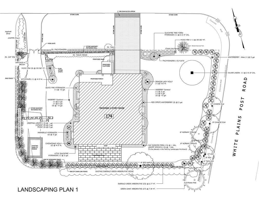
إليكم منزلاً جديداً مذهلاً مبني في موقع مريح للغاية في سكارسديل. تم تصميم هذا المنزل بشكل مدروس ليكون مناسباً لكل من الترفيه ولحياة العائلة المريحة. يتميز الداخل الفسيح بغرف رائعة تتدفق بسلاسة، مما يخلق جواً مرحباً في كل أرجائه. قلب المنزل هو المطبخ الفاخر الذي يحتوي على أجهزة من الفولاذ المقاوم للصدأ عالية الجودة، وخزائن مخصصة، ومخزن كبير. غرفة العائلة المتصلة تحتوي على مدفأة تعمل بالغاز وأبواب زجاجية تؤدي إلى الفناء الحجري. في الطابق الثاني، اكتشف أربع غرف نوم عائلية كبيرة وغرفة غسيل. يتميز الجناح الرئيسي الرائع بحمام مصمم خصيصًا وخزانتي ملابس مخصصة. المستوى السفلي المنتهي مثالي كغرفة ألعاب أو غرفة وسائط أو صالة رياضية ويحتوي على غرفة ضيوف وحمام كامل. تم بناؤه بتفكير من قِبل ويستشستر مو modular ويمكن الانتهاء منه خلال 4 أشهر فقط من توقيع العقد. يقع على بُعد خطوات من حديقة هايات، والمحلات التجارية، وتريدر جو، والمطاعم، وقرية سكارسديل، والقطار. معلومات إضافية: وسائل الراحة: حوض استحمام، تخزين، مواقف. الميزات: موقف سيارات مرفق لسيارتين.
Introducing a stunning new construction home in an ultra convenient Scarsdale location. This well thought out home is designed for both entertaining and comfortable family living. The spacious interior features gracious rooms that flow seamlessly, creating an inviting atmosphere throughout. The heart of the home is the high-end kitchen with top-of-the-line stainless steel appliances, custom cabinetry and a walk-in pantry. The connecting family room has a gas fireplace and glass doors to the stone patio. On the second floor, discover four large family bedrooms and laundry room. The impressive primary suite features a custom-designed bathroom and two walk-in custom closets. The finished lower level is perfect for a playroom /media room /gym and has a guest room and full bathroom. Thoughtfully built by Westchester Modular and can be completed within just 4 months of contract signing. Located just steps to Hyatt Park, shops, Trader Joes, restaurants, Scarsdale Village and train. Additional Information: Amenities:Soaking Tub,Storage,ParkingFeatures:2 Car Attached, © 2025 OneKey™ MLS, LLC







