| MLS # | 933379 |
| الوصف | 2 منزل عائلي ، 4 غرفة نوم ، 3 حمام ، كراج ، مكيف هواء ، مساحة الأرض: 0.07 فدان ، 2 شقة في المبنى عمر الإدراج (DOM): 67 يومًا |
| سنة البناء | 1942 |
| الضرائب (سنويًا) | $10,328 |
| نوع الوقود | غاز طبيعي Gas |
| مكيف هواء | تكييف هواء مثبت على الحائط Wall Unit AC |
![]() |
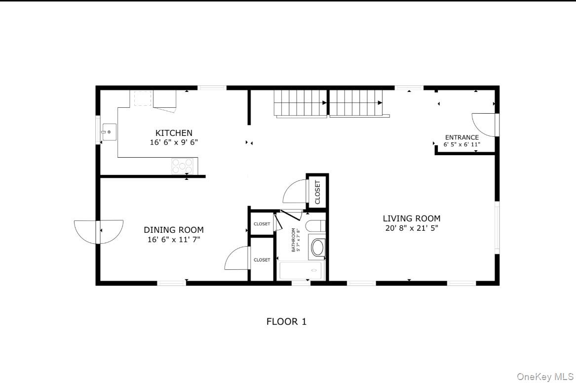
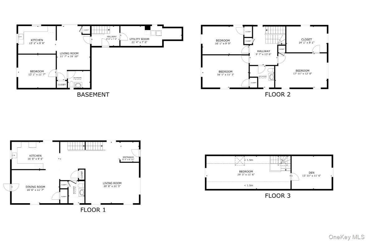
عقار قانوني مكون من عائلتين في حي ريفي هندي مميز، بالقرب من المدرسة، الحديقة، المستشفيات ووسائل النقل العامة، بالقرب من طريق بيلهام السريع الذي يسهل الوصول إلى الطريق السريع الرئيسي. يتميز هذا المنزل المنفصل الجذاب ذو العائلتين بغرفة معيشة وغرفة طعام في الطابق الأول، ومطبخ مع أسطح جرانيت وحمام كامل. الطابق الثاني يحتوي على غرفة نوم رئيسية مع خزانة ملابس مناسبة أو مكتب منزلي، وغرفتي نوم بحجم جيد وحمام كامل. بالإضافة إلى العلية القابلة للصعود مع نوافذ سقفية التي يمكن أن تكون غرفة ألعاب جميلة للأطفال أو سينما منزلية. المستوى الأرضي مع مدخل منفصل ويصل إليه من مرآب السيارات. إنها فرصة رائعة لمن يبحث عن استثمار أو ملكية سكنية. لا تفوتها واجعلها ملكك!
Legal 2 family in prime Indian Village neighborhood, close to school, park, hospitals and public transports, nearby Pelham Pkwy quick assess to major highway, This charming detached 2 family house features first floor living room and dining room, Granite counter-top kitchen and a full bathroom, 2nd floor features master bedroom with decent walk-in closet or home office, 2 nice size bedrooms and a full bathroom, Plus walk-up attic with skylights can be a nice kid's playroom or home theater, Ground level with separated entrance and accessible from garage, It's a great opportunity for your looking for investment or owner occupied property, Don't miss it and make it yours! © 2025 OneKey™ MLS, LLC







