| MLS # | 934643 |
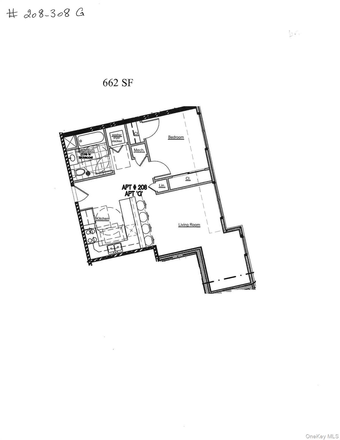
| الوصف | 1 غرفة نوم ، 1 حمام ، آلة التجفيف ، مكيف هواء ، 662 ft2 قدم مربع ، 62 متر مربع عمر الإدراج (DOM): 121 يومًا |
| سنة البناء | 2025 |
| نوع الوقود | كهربائي Electric |
| نوع الحرارة | كهربائي Electric |
| مكيف هواء | تكييف هواء مثبت على الحائط Wall Unit AC |
| محطة القطار | 0.1 ميل إلى محطة قطار "Bay Shore" |
| 2.4 ميل إلى محطة قطار "Islip" | |
![]() |
مرحبا بكم في أحدث تطوير لدينا "تشيلسي كومنز" في وسط مدينة بايشور المرغوب. 22 وحدة للإيجار من استوديو فاخر وغرفة نوم واحدة مع 33 مساحة لوقوف السيارات، مصعد، غسالة/مجفف، وحدات تدفئة وتبريد P-Tac. بالقرب من الطرق السريعة ووسائل النقل - دقائق من شارع الداون تاون الرئيسي، والمتاجر، والمطاعم، والشواطئ، والمستشفيات. مسافة قصيرة إلى العبارة إلى جزيرة فاير. ممنوع التدخين. سياسة الحيوانات الأليفة تتطلب إضافة 50.00 دولار شهريًا. يدفع المالك تكاليف المياه والصرف الصحي والنفايات وإزالة الثلوج. يدفع المستأجر الكهرباء وخدمة الكابل. بشرط توقيع عقد الإيجار في أو قبل 15 مارس، سيمنح المالك مدة إيجار تبلغ 18 شهرًا بسعر الإيجار الحالي، بدون زيادة.
Welcome to our newest development “Chelsea Commons” in desirable downtown Bayshore. 22 Luxury Studio and one bedroom rental units with 33 parking spaces, elevator, washer/dryer, P-Tac heating and cooling units. Close to highways and trains – minutes from Downtown Main Street, shops, restaurants, beaches and hospitals. Short distance to the Fire Island Ferry. No Smoking. Pet Policy is an additional $50.00 a month. Landlord pays water, sewer, garbage and snow removal. Tenant pays electric and cable. Provided the lease is executed on or before March 15th, the landlord will grant an 18-month lease term at the current rent, with no increase.
This information is not verified for authenticity or accuracy and is not guaranteed and may not reflect all real estate activity in the market. Listing courtesy of LAFFEY REAL ESTATE © 2026







