| ID # | 941519 |
| الوصف | 3 غرفة نوم ، 1 حمام ، 1 نصف حمام ، مساحة الأرض: 0.24 فدان ، 1056 ft2 قدم مربع ، 98 متر مربع ، يحتوي المبنى على 2 طابق عمر الإدراج (DOM): 22 يومًا |
| سنة البناء | 2003 |
![]() |
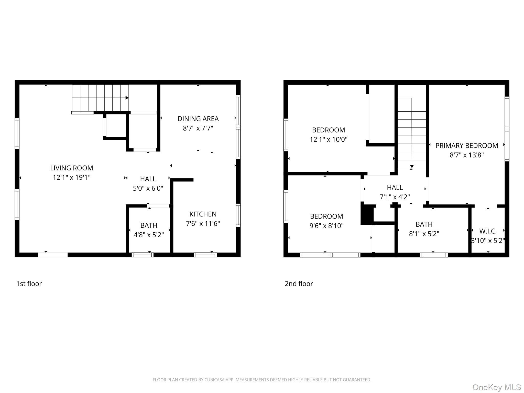
شقة جميلة وموقعها مريح تتكون من 3 غرف نوم، وحمامين (واحد ونصف)، ومكونة من طابقين، قيد الانتهاء حالياً وتجهيزها للانتقال إليها. عند دخولك، ستلاحظ الإضاءة الجديدة المتوفرة في جميع الأنحاء، مما يمنح المنزل شعوراً عصريًا ومشرقًا.
يتميز الطابق الأول بغرفة معيشة واسعة، وحمام نصف، ومطبخ، ومنطقة لتناول الطعام، والعديد من الخزائن التي توفر مساحة تخزين وافرة. في الطابق العلوي، يقدم الطابق الثاني غرفة نوم رئيسية كبيرة مع خزانة ملابس، وغرفتين إضافيتين، وحمام كامل.
استمتع بفائدة وجود مواقف سيارات خارج الشارع لمكانين يقعان خلف الوحدة. هذا الإيجار موقعه مثالي بالقرب من كلية مارست، والممر العابر لنهر هدسون، ومترو-نورث، والتسوق، وتناول الطعام.
يشمل الإيجار المياه، والصرف الصحي، والنفايات. المستأجر مسؤول عن جميع المرافق الأخرى.
Beautiful, conveniently located 3-bedroom, 1.5-bath, two-level apartment currently being completed and prepared for move-in. As you enter, you’ll notice the new recessed lighting throughout, giving the home a bright, modern feel.
The first floor features a spacious living room, half bath, kitchen, dining area, and multiple closets providing ample storage. Upstairs, the second floor offers a large primary bedroom with a walk-in closet, two additional bedrooms, and a full bathroom.
Enjoy the benefit of two off-street parking spaces located behind the unit. This rental is ideally situated near Marist College, the Walkway Over the Hudson, Metro-North, shopping, and dining.
Water, sewer, and garbage are included. Tenant is responsible for all other utilities. © 2025 OneKey™ MLS, LLC







