Narrowsburg

إيجار RENTAL

العنوان: ‎136 School Street

رمز المنطقة: 12764

2 غرفة نوم ، 1 حمام

分享到

$2,300

ID # 945489

عربي Arabic

Are you the listing agent? Sign up to add your name and cell #

Keller Williams Hudson Valley ☎ : ‍845-610-6065

$2,300 - 136 School Street, Narrowsburg , NY 12764 | ID # 945489

Property Description « عربي Arabic »

هذا المنزل العائلي الساحر الذي تم تجديده بالكامل يتكون من غرفتي نوم وحمام واحد، ويقع في قلب ناروزبورغ، على بُعد دقائق فقط من نهر ديلاوير، ومراكز التسوق في الشارع الرئيسي، والمطاعم، والفنون والثقافة المحلية. استمتع بأسلوب الحياة في المدينة الصغيرة مع وسائل الراحة الحديثة في جميع الأنحاء.

تتميز خطة الطابق المفتوح بمنطقة معيشة مشرقة، ومطبخ محدث مع أجهزة حديثة، وضوء طبيعي وفير. ويوفر القبو شبه المنتهي مساحة مرنة مثالية لاستوديو فني، أو مكتب منزلي، أو مساحة عمل إبداعية.

ميزات الداخل
غرف النوم: 2
الحمامات: 1 (ـكامل)

خطة طابق مفتوحة مع الكثير من الضوء الطبيعي
مطبخ محدث مع أجهزة حديثة
قبو شبه منتهي مثالي لاستوديو/مساحة إبداعية
موقد حطب/مدفأة للمعيشة المريحة

مميزات الخارجية والعقار
فناء خاص مع شرفة، مثالي للحياة في الهواء الطلق
مواقف سيارات خارج الشارع (ممر به مساحة لعدة سيارات)
يمكن السير على الأقدام إلى المطاعم المحلية، والمعارض، والحدائق، ونقاط الوصول إلى نهر ديلاوير

تدفئة عن طريق القاعدة
وحدات تكييف هواء للجدران/windows
غسالة ومجفف مدرجان
غسالة صحون وأجهزة مطبخ حديثة

الإيجار: 12 شهرًا كحد أدنى

الحيوانات الأليفة: مسموح بها بعد الموافقة (اتصل بوكيل القائمة)

يتحمل المستأجرون تكاليف المرافق، والقمامة، ورعاية الحديقة، وتأمين المستأجرين

الموقع والمدارس
يقع في منطقة مدارس سوليفان ويست المركزية، مما يوفر وصولاً سهلاً إلى المدارس المحلية.

ID #‎ 945489
الوصف
Details
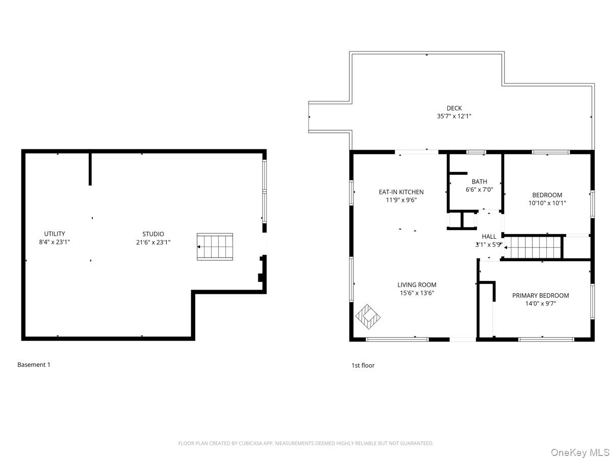
2 غرفة نوم ، 1 حمام ، الغسالة ، آلة التجفيف ، كراج ، مكيف هواء ، مساحة الأرض: 0.52 فدان ، 768 ft2 قدم مربع ، 71 متر مربع
عمر الإدراج (DOM): 4 يومًا
سنة البناء
Construction Year
1960
مكيف هواء
Air
Conditioning
تكييف هواء مثبت على الحائط Wall Unit AC

Are you the listing agent? Sign up to add your name/photo/cell to your flyers. helpdesk@Samaki.com

房屋概況 Property Description « عربي Arabic »« ENGLISH »

هذا المنزل العائلي الساحر الذي تم تجديده بالكامل يتكون من غرفتي نوم وحمام واحد، ويقع في قلب ناروزبورغ، على بُعد دقائق فقط من نهر ديلاوير، ومراكز التسوق في الشارع الرئيسي، والمطاعم، والفنون والثقافة المحلية. استمتع بأسلوب الحياة في المدينة الصغيرة مع وسائل الراحة الحديثة في جميع الأنحاء.

تتميز خطة الطابق المفتوح بمنطقة معيشة مشرقة، ومطبخ محدث مع أجهزة حديثة، وضوء طبيعي وفير. ويوفر القبو شبه المنتهي مساحة مرنة مثالية لاستوديو فني، أو مكتب منزلي، أو مساحة عمل إبداعية.

ميزات الداخل
غرف النوم: 2
الحمامات: 1 (ـكامل)

خطة طابق مفتوحة مع الكثير من الضوء الطبيعي
مطبخ محدث مع أجهزة حديثة
قبو شبه منتهي مثالي لاستوديو/مساحة إبداعية
موقد حطب/مدفأة للمعيشة المريحة

مميزات الخارجية والعقار
فناء خاص مع شرفة، مثالي للحياة في الهواء الطلق
مواقف سيارات خارج الشارع (ممر به مساحة لعدة سيارات)
يمكن السير على الأقدام إلى المطاعم المحلية، والمعارض، والحدائق، ونقاط الوصول إلى نهر ديلاوير

تدفئة عن طريق القاعدة
وحدات تكييف هواء للجدران/windows
غسالة ومجفف مدرجان
غسالة صحون وأجهزة مطبخ حديثة

الإيجار: 12 شهرًا كحد أدنى

الحيوانات الأليفة: مسموح بها بعد الموافقة (اتصل بوكيل القائمة)

يتحمل المستأجرون تكاليف المرافق، والقمامة، ورعاية الحديقة، وتأمين المستأجرين

الموقع والمدارس
يقع في منطقة مدارس سوليفان ويست المركزية، مما يوفر وصولاً سهلاً إلى المدارس المحلية.

This Charming and completely renovated 2-bedroom, 1-bath single-family home located in the heart of Narrowsburg, just minutes from the Delaware River, Main Street shops, restaurants, and local arts and culture. Enjoy the small-town lifestyle with modern comforts throughout.

The open-plan layout features a bright living area, updated kitchen with modern appliances, and abundant natural light. A partially finished basement offers flexible space perfect for an art studio, home office, or creative workspace.

Interior Features
Bedrooms: 2
Bathrooms: 1 (Full)

Open floorplan with ample natural light
Upated kitchen with modern appliances
Partially finished basement ideal for studio/creative space
Wood-burning stove/fireplace for cozy living

Exterior & Property Highlights
Private yard with deck, perfect for outdoor living
Off-street parking (driveway with space for multiple vehicles)
Walkable to local eateries, galleries, parks, and the Delaware River access points

Baseboard heating
Wall/window AC units
Washer & dryer included
Dishwasher & modern kitchen appliances

Lease: 12-month minimum

Pets: Allowed upon approval (contact listing agent)

Tenants responsible for utilities, trash, lawn care, and renter’s insurance


Location & Schools
Located in the Sullivan West Central School District, offering easy access to local schools. © 2025 OneKey™ MLS, LLC

Courtesy of Keller Williams Hudson Valley

公司: ‍845-610-6065

周边物业 Other properties in this area




分享 Share

$2,300

إيجار RENTAL
ID # 945489
‎136 School Street
Narrowsburg, NY 12764
2 غرفة نوم ، 1 حمام


Listing Agent(s):‎
Are you the listing agent? Sign up to add your name and cell #‎

☎ : ‍845-610-6065

请说您在SAMAKI.COM看此广告

请也给我ID # 945489