| ID # | 945944 |
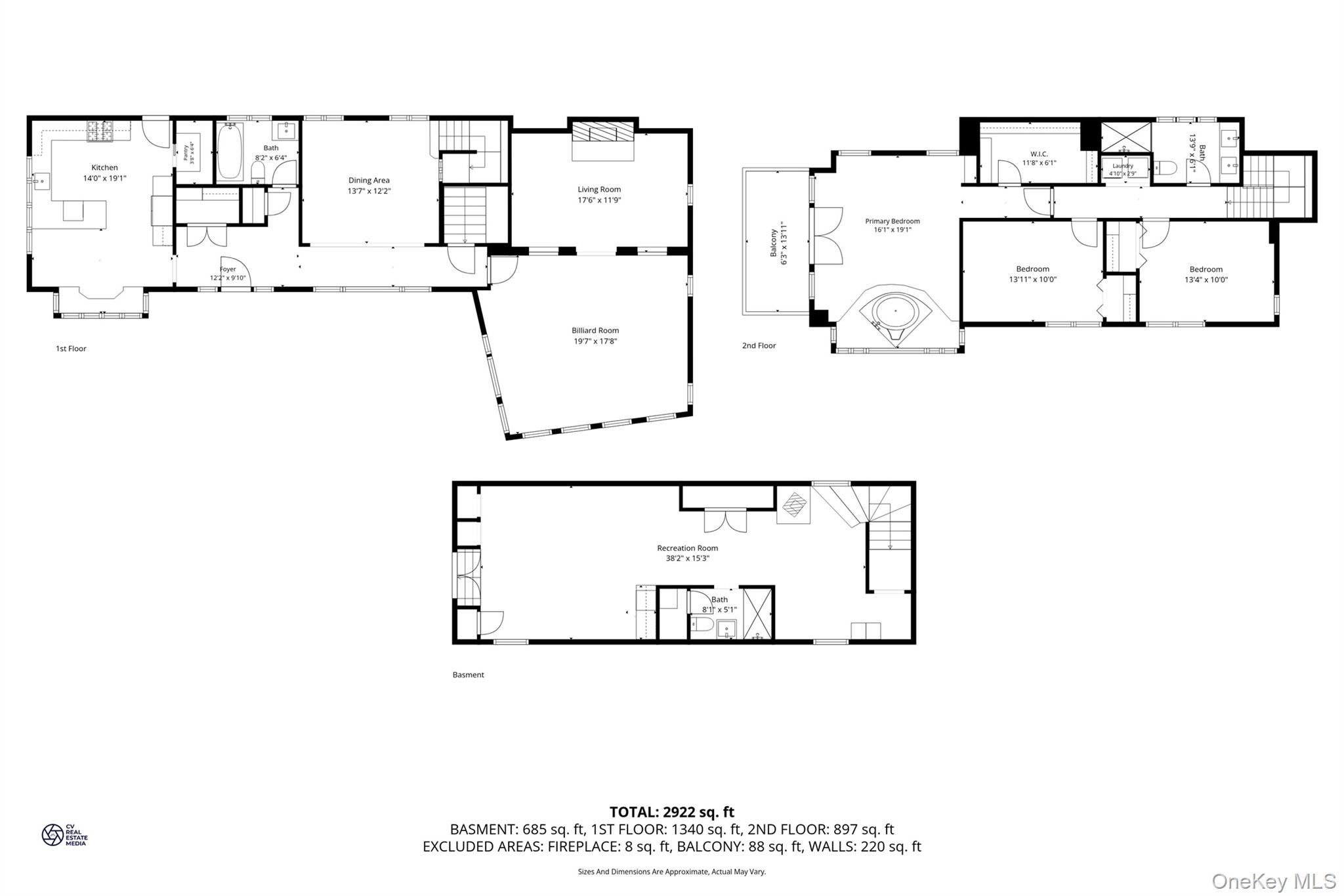
| الوصف | 3 غرفة نوم ، 3 حمام ، مكيف هواء ، مساحة الأرض: 0.86 فدان ، 2467 ft2 قدم مربع ، 229 متر مربع عمر الإدراج (DOM): 23 يومًا |
| سنة البناء | 1955 |
| الضرائب (سنويًا) | $21,388 |
| نوع الحرارة | ماء ساخن Hot water |
| مكيف هواء | تكييف هواء مركزي Central Air |
![]() |
مُقامة في قمة جرف في بييرمونت، توفر هذه الإقامة المكونة من ثلاث غرف نوم وثلاث حمامات وإطلالة على النهر إحساسًا نادرًا بالخصوصية والضوء والهدوء. محاطة بجمال طبيعي، تلتقط المنزل وجهات نظر واسعة تتجه نحو الشرق لنهر هدسون والجسر الموجود في الخلفية، مما يخلق خلفية هادئة تتغير مع الضوء والفصول.
تم دمج التصميم المدروس والتحديثات الحديثة في جميع أرجاء المنزل، مما يعزز المساحة والتدفق والضوء الطبيعي. يوازن التخطيط بين الانفتاح والحميمية، حيث يوفر مساحات ملائمة للتفكير الهادئ وللاحتفال بأناقة. تُؤطّر النوافذ الكبيرة المناظر بينما تدعو الطبيعة الخارجية إلى الداخل، مما يخلق ارتباطًا قويًا بالمناظر الطبيعية المحيطة.
تنفتح مساحات المعيشة الداخلية والخارجية بسلاسة، مع مناطق مصممة للتجمع والعشاء والاسترخاء، بالإضافة إلى ملاذات أكثر خصوصية. مناسبة تمامًا كمكان سكن دائم أو كملاذ لعطلة نهاية الأسبوع، تقدم هذه المنزل في بييرمونت مزيجًا نادرًا من الرومانسية والهدوء والعيش اليومي.
Set high atop a hillside in Piermont, this three-bedroom, three-bathroom river-view residence offers an uncommon sense of privacy, light, and retreat. Surrounded by natural beauty, the home captures expansive eastern-facing views of the Hudson River and bridge beyond, creating a serene backdrop that changes with the light and seasons.
Thoughtful design and modern updates are integrated throughout, enhancing space, flow, and natural light. The layout balances openness with intimacy, offering spaces well-suited for both quiet reflection and gracious entertaining. Large windows frame the views while inviting the outdoors in, creating a strong connection to the surrounding landscape.
Indoor and outdoor living unfold seamlessly, with areas designed for gathering, dining, and relaxation, as well as more private retreats. Equally suited as a full-time residence or a weekend escape, this Piermont home offers a rare combination of romance, tranquility, and everyday livability. © 2025 OneKey™ MLS, LLC







