| MLS # | 948521 |
| الضرائب (سنويًا) | $606 |
| محطة القطار | 0.2 ميل إلى محطة قطار "Huntington" |
| 2.3 ميل إلى محطة قطار "Cold Spring Harbor" | |
![]() |
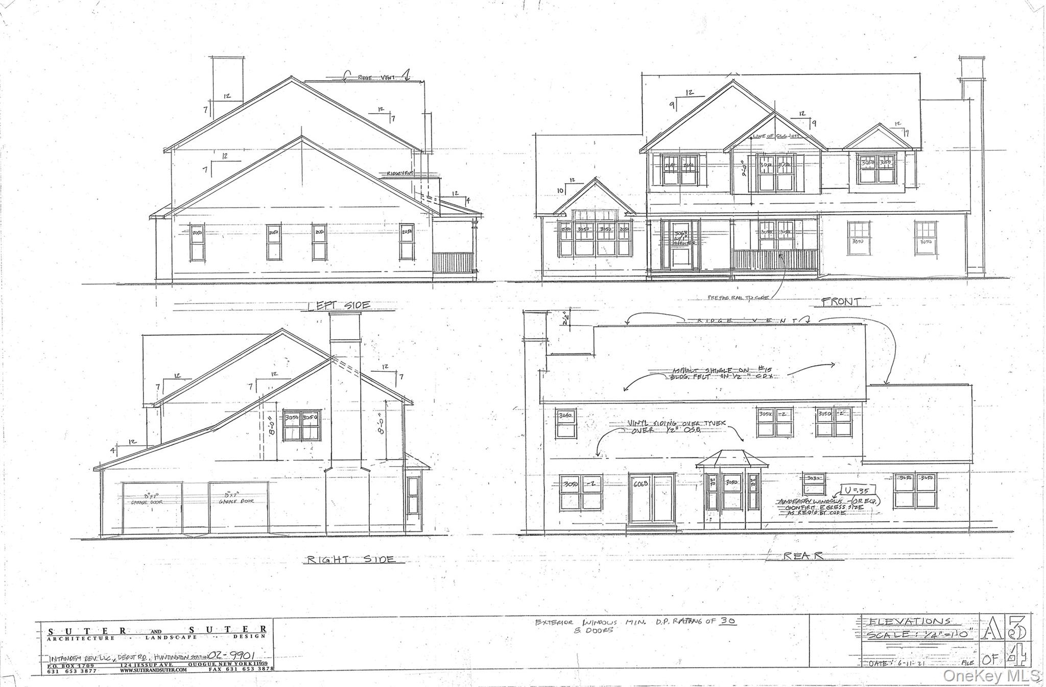
15,338 قدم مربع من الأرض الفارغة؛ جاهزة لبناء منزل أحلامك فورًا، في مدينة هنتنغتون. حجم البناء هو 42 × 52 قدم، مكون من طابقين ويحتوي على 4 غرف نوم، 3 حمامات، ومرآب بمساحة 520 قدم مربع. خطة معتمدة وجميع التصاريح جاهزة. تقع بالقرب من الحدائق والمدارس ومراكز التسوق وغيرها. بضع دقائق إلى محطة LIRR. ضريبة ملكية منخفضة، يجب رؤيتها. ممتازة للاستخدام الشخصي أو الاستثمار.
15,338 Sqft Vacant Land; Ready to build your Dream house immediately, in the Town of Huntington. The Building Size is 42 X 52 ft., 2 Story comes with 4 Bedrooms, 3 Bathrooms, 520 Sqft Garage. Approved plan and All Permits are in place. It is close to parks, schools, shopping malls, etc. A few minutes to LIRR station. Low property tax, Must to see. Great for self-use, or investment.
This information is not verified for authenticity or accuracy and is not guaranteed and may not reflect all real estate activity in the market. Listing courtesy of Chase Global Realty Corp © 2026







