| ID # | RLS20065477 |
| الوصف | The Gregory House At 222 East 35Th Street 1 غرفة نوم ، 1 حمام ، 850 ft2 قدم مربع ، 79 متر مربع ، 60 شقة في المبنى ، يحتوي المبنى على 6 طابق عمر الإدراج (DOM): 66 يومًا |
| سنة البناء | 1941 |
| رسوم الصيانة | $2,069 |
| مترو | 6 دقيقة بعيدا عن المترو 6 |
| 8 دقيقة بعيدا عن المترو 7, 4, 5 | |
| 10 دقيقة بعيدا عن المترو S | |
![]() |
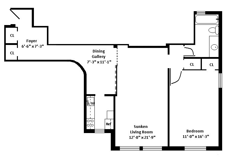
شقة كبيرة مكونة من غرفة نوم واحدة مزودة بخصائص قبل الحرب وتتميز بإضاءة جيدة. تشمل ميزات الشقة: أرضيات خشبية، ردهة دخول كبيرة، منطقة طعام منفصلة مع خطوة إلى غرفة معيشة منخفضة، مطبخ منفصل مزود بنافذة وغسالة أطباق، غرفة نوم بحجم ملكي، خزائن جيدة وسقوف مرتفعة. تقع في قلب موراي هيل بجوار Trader Joe's وسوق Fairway ووسائل النقل ووفرة من المتاجر والمطاعم والبارات. تحتوي Gregory House على مصعد ونظام إنتركم بالفيديو وخزائن للدراجات وتخزين (مقابل رسوم) وغرفة غسيل. يُسمح بالتأجير الفرعي غير المحدود بعد عامين من إقامة المالك، ويُسمح بالشراكة والضامنين. يُسمح بالحيوانات الأليفة.
This oversized one bedroom apartment is bright with prewar details throughout. Apartment features include: hardwood floors, large entry foyer, separated dining area with a step down to a sunken living room, separate windowed kitchen with a dishwasher, king sized bedroom, good closets and high ceilings. Located in the heart of Murray Hill next to Trader Joe's, Fairway Market, transportation and a myriad of shops, restaurants and bars. Gregory House is an elevator coop building with a live-in super, video intercom, bike storage, storage (for a fee) and laundry room. Unlimited subletting is permitted after two years of owner occupancy and co-purchasing and guarantors are allowed. Pets are welcomed.
This information is not verified for authenticity or accuracy and is not guaranteed and may not reflect all real estate activity in the market. © 2026 The Real Estate Board of New York, Inc., All rights reserved.







