| ID # | RLS20066966 |
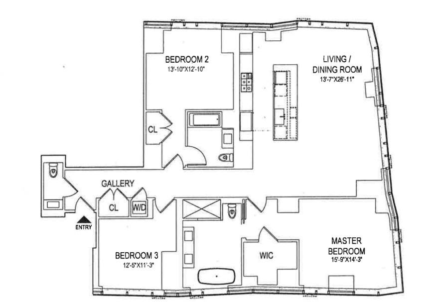
| الوصف | 3 غرفة نوم ، 2 حمام ، 1 نصف حمام ، الغسالة ، آلة التجفيف ، كراج ، 1913 ft2 قدم مربع ، 178 متر مربع ، 246 شقة في المبنى ، يحتوي المبنى على 42 طابق عمر الإدراج (DOM): 57 يومًا |
| سنة البناء | 2017 |
| رسوم الصيانة | $2,838 |
| الضرائب (سنويًا) | $1,620 |
| مترو | 9 دقيقة بعيدا عن المترو 1 |
| 10 دقيقة بعيدا عن المترو A, B, C, D | |
![]() |
شقة زاوية مذهلة تحتوي على ثلاث غرف نوم / حمامين ونصف، لديها كل شيء.
عند دخولك هذه الشقة الفسيحة، ستستقبل بمناظر شاملة للمدينة. لمسات مدروسة في جميع الأنحاء بما في ذلك تصميمات داخلية مخصصة وعلاجات حائطية ونوافذ أنيقة تكمل هذا المنزل الجاهز للسكن.
تتميز مطبخ الطهاة ذو التصميم المفتوح بأسطح عمل من الرخام رائعة وتشطيبات فاخرة، تتدفق بسلاسة إلى مناطق المعيشة والطعام - مثالية للحياة اليومية والترفيه.
تتضمن جناح الزاوية الرئيسي خزانة ملابس كبيرة وحمام مستوحى من المنتجع الصحي يتكون من 5 قطع مع أرضيات مدفأة، وحوض استحمام، وأسطح رخامية ودش منفصل.
غرفتين نوم إضافيتين، وحمام كامل آخر، وحمام نصف، وغسالة/مجفف تكمل هذه الشقة الهادئة.
يمتاز 1 ويست إند أفنيو بمجموعة رائعة من المرافق. مركز للياقة البدنية يحتوي على حوض سباحة بطول 75 قدم مع أتيوم مدعوم مرتفع. Terrasse خارجية ضخمة بمساحة 12,000 قدم مربع مع كابانات، وشوايات، ومساحات ترفيه خارجية ومساحات خضراء مزهرة. تشمل المرافق الإضافية غرفة معيشة فسيحة مع مدفأة، وغرفة طعام بمطبخ محترف للطبخ، وغرفة وسائط، وغرف بلياردو وألعاب، وغرفة لعب.
تتميز البناية بخدمة بواب وكونسيرج بدوام كامل، بالإضافة إلى مواقف للسيارات في الموقع مقابل رسوم إضافية. مرحب بالحيوانات الأليفة.
تتوفر مساحة تخزين خاصة للبيع مع هذه الوحدة. هناك إعفاء ضريبي J-51 ساري حتى عام 2037.
Spectacular Three Bedroom / Two and a Half Bath Corner Condominium has it all.
Upon entering this expansive apartment you are greeted with sweeping open city views. Thoughtful touches throughout including custom designer built-ins, sophisticated wall and window treatments compliment this move-in-ready home.
The chef's open-concept kitchen showcases gorgeous marble countertops and premium finishes, seamlessly flowing into the living and dining areas-ideal for both everyday living and entertaining.
The Corner Primary suite includes an oversized walk-in-closet and huge Spa-Inspired 5 piece bath with heated floors, soaking tub, marble countertops and separate shower.
Two additional bedrooms, another full bath, half bath and Washer/Dryer finish off this serene apartment.
1 West End Avenue boasts an incredible array of amenities. Fitness Center boasting a 75-foot swimming pool with a double- height cantilevered atrium. Oversized 12,000 square foot outdoor terrace with cabanas, grills, outdoor entertaining spaces and lush green spaces. Additional amenities include a spacious living room with fireplace, dining room with a chef's professional kitchen, media room, billiards and game rooms, and playroom.
Building features Full-time Doorman and Concierge service. as well as on-site parking for an additional fee. Pets Welcome.
Private Storage available for sale with this unit. J-51 Tax Abatement in place thru 2037.
This information is not verified for authenticity or accuracy and is not guaranteed and may not reflect all real estate activity in the market. © 2026 The Real Estate Board of New York, Inc., All rights reserved.







