| MLS # | 952233 |
| الوصف | 2 غرفة نوم ، 2 حمام ، 1 نصف حمام ، آلة غسل الصحون ، الغسالة ، آلة التجفيف ، كراج ، مكيف هواء ، مساحة الأرض: 0.28 فدان ، 1631 ft2 قدم مربع ، 152 متر مربع عمر الإدراج (DOM): 1 يومًا |
| سنة البناء | 2001 |
| رسوم الصيانة | $645 |
| الضرائب (سنويًا) | $6,535 |
| نوع الوقود | غاز طبيعي Gas |
| نوع الحرارة | هواء ساخن Hot air |
| مكيف هواء | تكييف هواء مركزي Central Air |
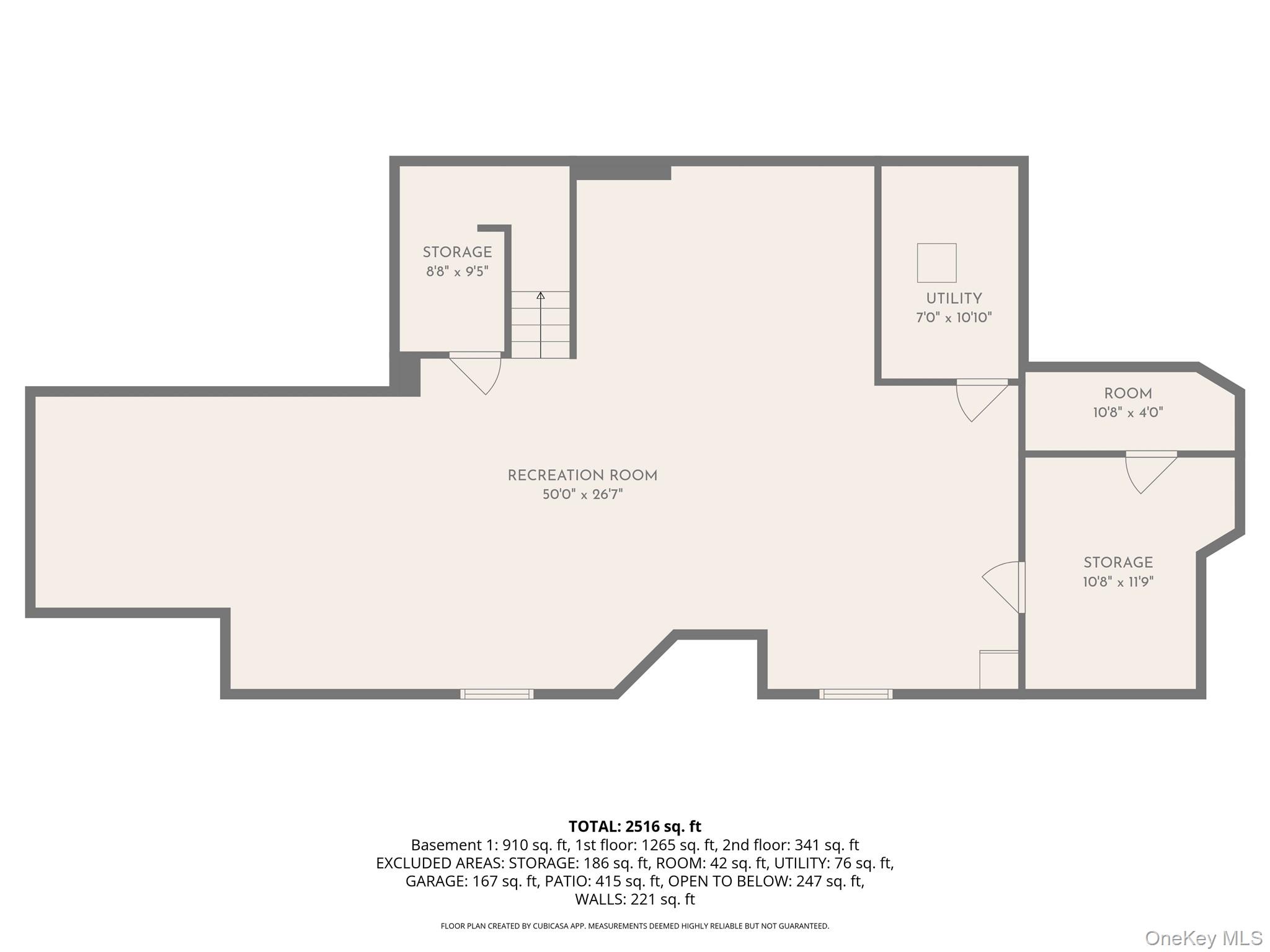
| القبو | قبو كامل Full basement |
| محطة القطار | 1.4 ميل إلى محطة قطار "Riverhead" |
| 7.7 ميل إلى محطة قطار "Westhampton" | |
![]() |
نموذج كابتيفا المطلوب في سادل ليكس، مجتمع فاخر للأشخاص فوق 55 عاماً مع مرافق على طراز المنتجعات. تحتوي هذه الشقة ذات الغرفتين والحمامين ونصف الحمام على طابق علوي مع حمام نصف، مثالي للضيوف أو كمكتب منزلي. تشمل المميزات نظام تكييف هواء محسن، وتخزين واسع مع مستوى سفلي كامل يوفر مساحة مرنة، وفناء من الأحجار يطل على بركة هادئة. تقع في موقع مثالي على بعد لحظات فقط من النادي، والبلياردو، ومركز اللياقة البدنية، والبيكلبول، والتنس، والبوتشي، ودور السينما. قريبة من التسوق، وأفضل المرافق الطبية، والمطاعم، وكروم العنب، وأكشاك المزارع، مما يوفر أسلوب حياة نشط وسهل في شمال فوك.
Desirable Captiva model in Saddle Lakes, an upscale 55+ community with resort-style amenities. This 2-bedroom, 2.5-bath condo features a loft with half bath, ideal for guests or a home office. Highlights include an updated HVAC system, generous storage with a full lower level offering flexible space, and a paver patio overlooking a peaceful pond. Ideally located just moments from the clubhouse, pools, fitness center, pickleball, tennis, bocce, and movie theater. Close to shopping, top medical facilities, restaurants, vineyards, and farm stands, offering easy, active North Fork living. © 2025 OneKey™ MLS, LLC





