| ID # | RLS20068021 |
| الوصف | 1 غرفة نوم ، 1 حمام ، 1 نصف حمام ، آلة غسل الصحون ، 840 ft2 قدم مربع ، 78 متر مربع ، 13 شقة في المبنى ، يحتوي المبنى على 6 طابق عمر الإدراج (DOM): 51 يومًا |
| سنة البناء | 2012 |
| رسوم الصيانة | $783 |
| الضرائب (سنويًا) | $4,716 |
| مترو | 4 دقيقة بعيدا عن المترو 2, 3 |
| 7 دقيقة بعيدا عن المترو 4, 5, 6 | |
![]() |
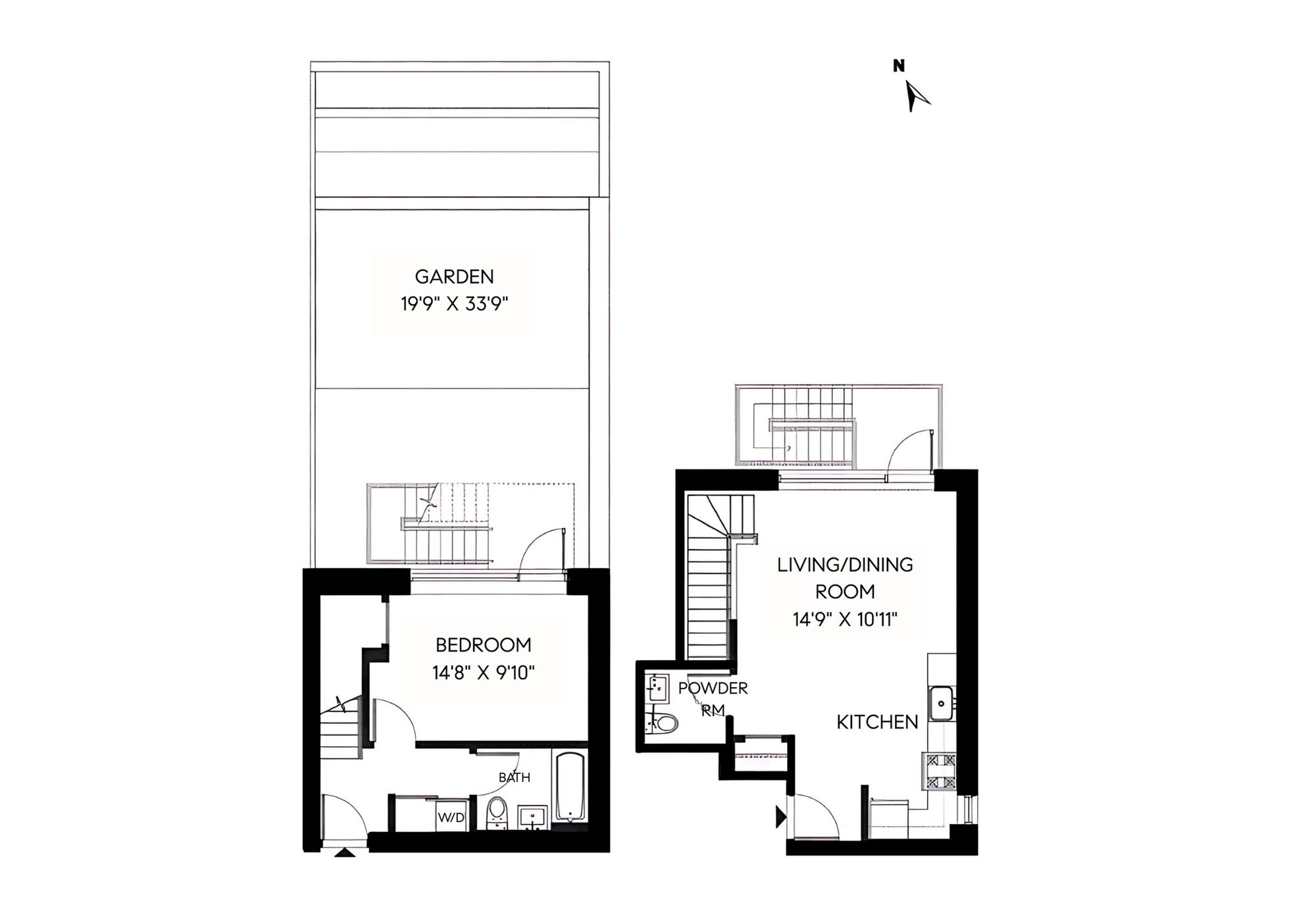
مرحبًا بك في 5 W 127th St Unit 1B، حيث تنتظرك واحة خاصة في الهواء الطلق — ملاذ نادر في قلب المدينة. سواء كنت تستضيف تجمعات الصيف، أو تخلق ملاذاً في حديقة كثيفة، أو ببساطة تستمتع بفنجان قهوة هادئ في الصباح، فإن هذه المساحة الخارجية الواسعة تقدم إمكانيات لا حصر لها للاسترخاء والترفيه.
داخل الشقة، يلتقي الرقي الكلاسيكي بالراحة الحديثة في هذا الدوبلكس المصان بدقة. ادخل إلى الأماكن الداخلية ذات الأسقف العالية التي تعزز شعور الانفتاح في التصميم المدروس. تملأ النوافذ المزدوجة المواجهة للشمال منطقة المعيشة بأشعة الضوء الطبيعي الناعمة، مما يخلق أجواء دعوة ومريحة. المطبخ الأنيق، المجهز بغسالة صحون، يتكامل بسلاسة مع مساحة المعيشة، مما يجعله مثالياً لكل من الروتين اليومي والترفيه. يضيف وجود حمام نصف في الطابق الرئيسي سهولة وعملية.
في الطابق السفلي، ستجد غرفة نوم فسيحة تحتوي على خزائن مزدوجة لتوفير مساحة تخزين كبيرة، بالإضافة إلى حمام كامل على بعد خطوات فقط. توفر غسالة ومجفف الملابس داخل الوحدة راحة لا تضاهى.
يستمتع السكان بالوصول إلى المرافق المطلوبة، بما في ذلك صالة رياضية مجهزة بالكامل، وغرفة دراجات آمنة، ومصعد. يضيف نظام الاتصال الصوتي مستوى إضافياً من الأمان، بينما توفر السطح المشترك مناظر هادئة مع إطلالات على أفق المدينة.
مع تكييف الهواء المركزي والتدفئة، تضمن هذه الشقة الرائعة الراحة طوال كل فصل.
Welcome to 5 W 127th St Unit 1B, where a very special private outdoor oasis awaits — a rare retreat in the heart of the city. Whether you’re hosting summer gatherings, creating a lush garden sanctuary, or simply enjoying a quiet morning coffee, this expansive outdoor space offers endless possibilities for relaxation and entertaining.
Inside, classic sophistication meets modern comfort in this meticulously maintained duplex condo. Step inside to high ceilings that amplify the sense of openness within the thoughtfully designed layout. Northern-facing dual-pane windows fill the living area with soft natural light, creating an inviting and cozy ambiance. The sleek kitchen, complete with a dishwasher, integrates seamlessly with the living space, perfect for both daily routines and entertaining. A conveniently placed half bathroom on the main level adds ease and practicality.
Downstairs, you’ll find a spacious bedroom featuring dual closets for generous storage, along with a full bathroom just steps away. The in-unit washer and dryer provide unmatched convenience.
Residents enjoy access to sought-after amenities, including a fully equipped gym, a secure bike room, and an elevator. A voice intercom system adds an extra level of security, while the shared rooftop deck offers a serene escape with skyline views.
With central air conditioning and heating, this remarkable condo ensures comfort throughout every season.
This information is not verified for authenticity or accuracy and is not guaranteed and may not reflect all real estate activity in the market. © 2026 The Real Estate Board of New York, Inc., All rights reserved.







