منزل HOUSE
العنوان: ‎107 Robinson Lane
رمز المنطقة: 12590
4 غرفة نوم ، 3 حمام
分享到
$648,500
ID # 961654
عربي Arabic
Are you the listing agent? Sign up to add your name and cell #
Westchester Dream Home Realty ☎ : ‍914-447-2479

$648,500 - 107 Robinson Lane, Wappingers Falls, NY 12590|ID # 961654

Property Description « عربي Arabic »

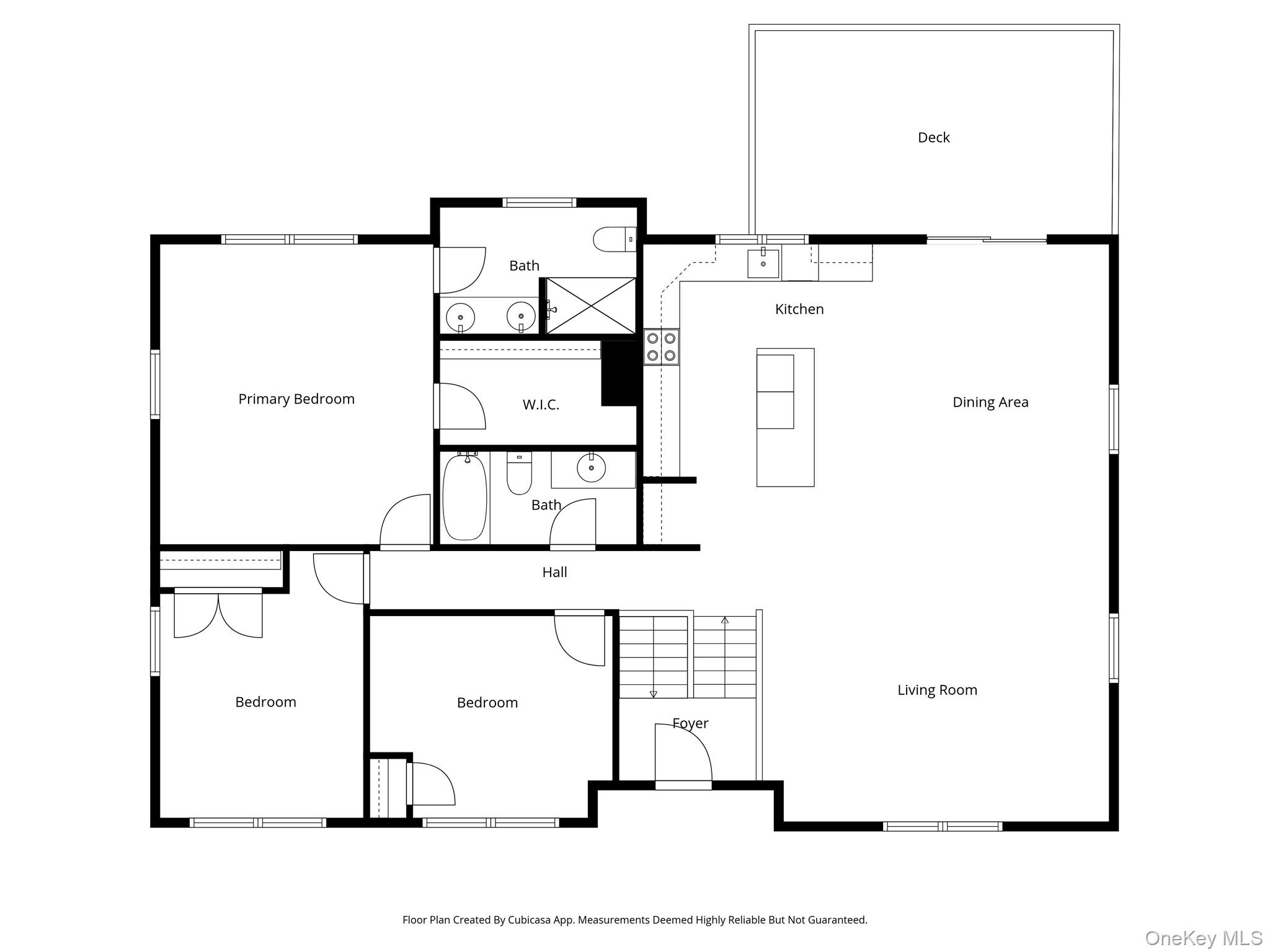
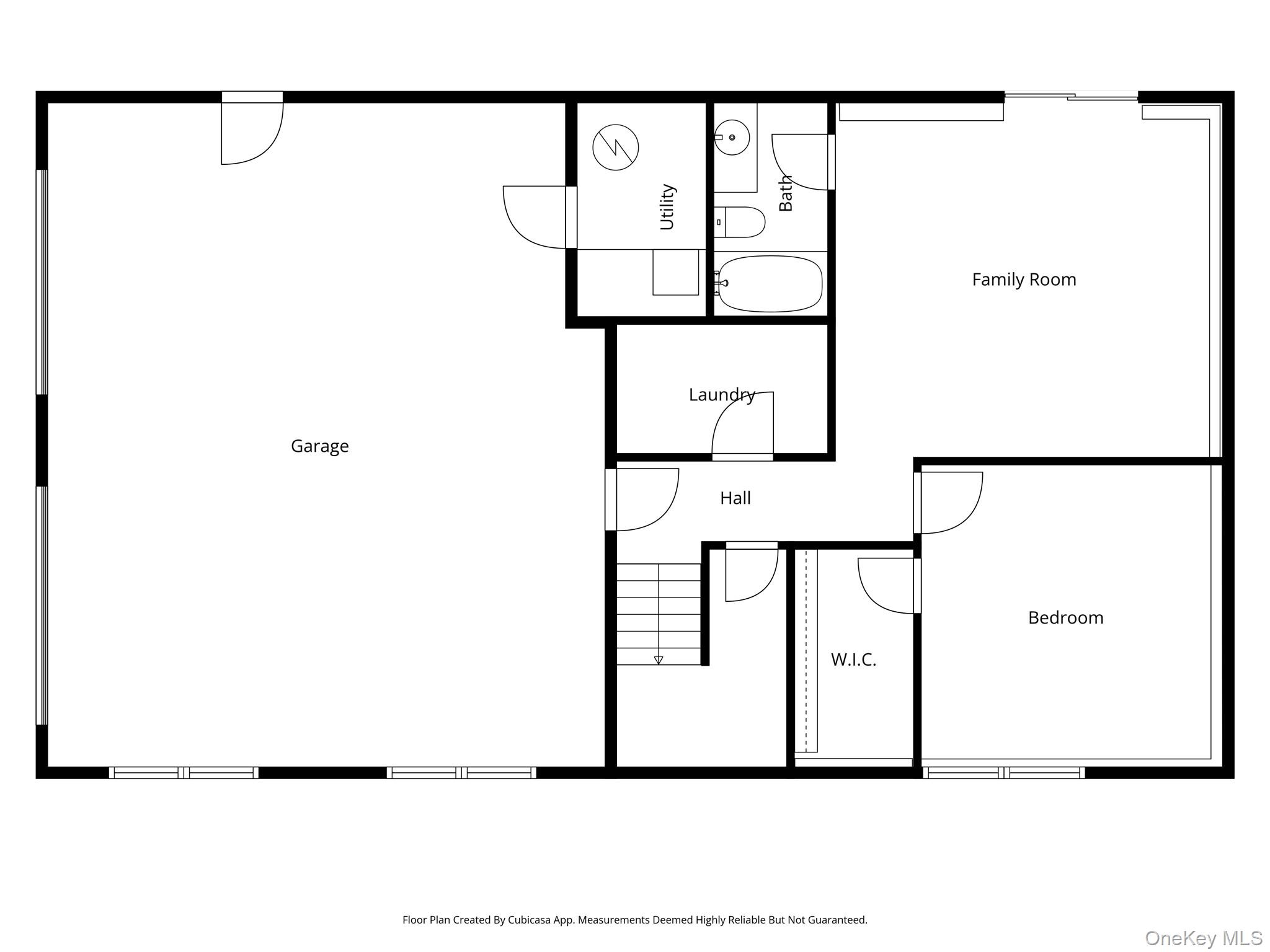
ادخل إلى الأناقة الحديثة في 107 روبنسون لين - منزل ريفي جديد عصري مرتفع في وابينجر فارم إستيتس، وهو مجتمع حصري يتكون من 11 قطعة أرض. البيت الثالث المكتمل في هذا التجمع السكني الراقي، يعكس تصميمًا مدروسًا وحرفية عالية طوال الوقت. استمتع بالصعود على الدرج الواسع إلى تخطيط مفتوح دراماتيكي تميزه الأسقف القوطية العالية وأرضيات الخشب الغني. تحتوي المطبخ المصمم على جزيرة رائعة بطول 7 أقدام، مما يضيف قيمة للمساحة ويتدفق بسلاسة إلى منطقة تناول الطعام وغرفة المعيشة المليئة بأشعة الشمس. تؤدي الأبواب الزجاجية المنزلقة إلى شرفة واسعة تطل على ملكية بمساحة 1.2 فدان مستوية مع موقع للحمام السباحة - وهو إعداد مثالي للتسلية في الهواء الطلق أو الاسترخاء الهادئ. تحتوي الجناح الرئيسي على حمام داخلي وخزانة ملابس. يوسع الطابق السفلي المُجهز مساحة المعيشة مع غرفة عائلية كبيرة، وغرفة نوم رابعة، وحمام كامل، وصول إلى الفناء - مثالي للضيوف أو المعيشة الممتدة. صُمم هذا المنزل الذي يراعي الكفاءة والراحة على مدار السنة، حيث يشمل تكييف هواء مركزي، وعزل رغوي رذاذ، ونظام كبير للغاز البترولي المسال تحت الأرض يغذي نظام التدفئة. يقع في منطقة مدارس أرلينغتون وعلى بعد دقائق من حديقة ولاية تاكونيك، مما يوفر توازنًا بين الخصوصية والوصول المريح.

ID #‎ 961654
الوصف
Details
4 غرفة نوم ، 3 حمام ، آلة غسل الصحون ، الغسالة ، كراج ، مكيف هواء ، مساحة الأرض: 1.19 فدان ، 2540 ft2 قدم مربع ، 236 متر مربع
عمر الإدراج (DOM): 0 يومًا
سنة البناء
Construction Year
2026
نوع الحرارة
Heat type
هواء ساخن Hot air
مكيف هواء
Air
Conditioning
تكييف هواء مركزي Central Air
Are you the listing agent? Sign up to add your name/photo/cell to your flyers. helpdesk@Samaki.com
房屋概況 Property Description « عربي Arabic »« ENGLISH »

ادخل إلى الأناقة الحديثة في 107 روبنسون لين - منزل ريفي جديد عصري مرتفع في وابينجر فارم إستيتس، وهو مجتمع حصري يتكون من 11 قطعة أرض. البيت الثالث المكتمل في هذا التجمع السكني الراقي، يعكس تصميمًا مدروسًا وحرفية عالية طوال الوقت. استمتع بالصعود على الدرج الواسع إلى تخطيط مفتوح دراماتيكي تميزه الأسقف القوطية العالية وأرضيات الخشب الغني. تحتوي المطبخ المصمم على جزيرة رائعة بطول 7 أقدام، مما يضيف قيمة للمساحة ويتدفق بسلاسة إلى منطقة تناول الطعام وغرفة المعيشة المليئة بأشعة الشمس. تؤدي الأبواب الزجاجية المنزلقة إلى شرفة واسعة تطل على ملكية بمساحة 1.2 فدان مستوية مع موقع للحمام السباحة - وهو إعداد مثالي للتسلية في الهواء الطلق أو الاسترخاء الهادئ. تحتوي الجناح الرئيسي على حمام داخلي وخزانة ملابس. يوسع الطابق السفلي المُجهز مساحة المعيشة مع غرفة عائلية كبيرة، وغرفة نوم رابعة، وحمام كامل، وصول إلى الفناء - مثالي للضيوف أو المعيشة الممتدة. صُمم هذا المنزل الذي يراعي الكفاءة والراحة على مدار السنة، حيث يشمل تكييف هواء مركزي، وعزل رغوي رذاذ، ونظام كبير للغاز البترولي المسال تحت الأرض يغذي نظام التدفئة. يقع في منطقة مدارس أرلينغتون وعلى بعد دقائق من حديقة ولاية تاكونيك، مما يوفر توازنًا بين الخصوصية والوصول المريح.

Read the English version or choose another language

This information is not verified for authenticity or accuracy and is not guaranteed and may not reflect all real estate activity in the market. Listing courtesy of Westchester Dream Home Realty © 2026

Courtesy of Westchester Dream Home Realty

公司: ‍914-447-2479

Other properties in this area




分享 Share
$648,500
منزل HOUSE
ID # 961654
‎107 Robinson Lane
Wappingers Falls, NY 12590
4 غرفة نوم ، 3 حمام


Listing Agent(s):‎
Are you the listing agent? Sign up to add your name and cell #‎
☎ : ‍914-447-2479
请说您在SAMAKI.COM看此广告
请也给我ID # 961654