| ID # | RLS20075827 |
| الوصف | 2 غرفة نوم ، 1 حمام ، 1 نصف حمام ، آلة غسل الصحون ، 1200 ft2 قدم مربع ، 111 متر مربع ، 57 شقة في المبنى ، يحتوي المبنى على 13 طابق عمر الإدراج (DOM): 7 يومًا |
| سنة البناء | 1902 |
| مترو | 1 دقيقة بعيدا عن المترو 1, 2, 3 |
| 6 دقيقة بعيدا عن المترو B, C | |
![]() |
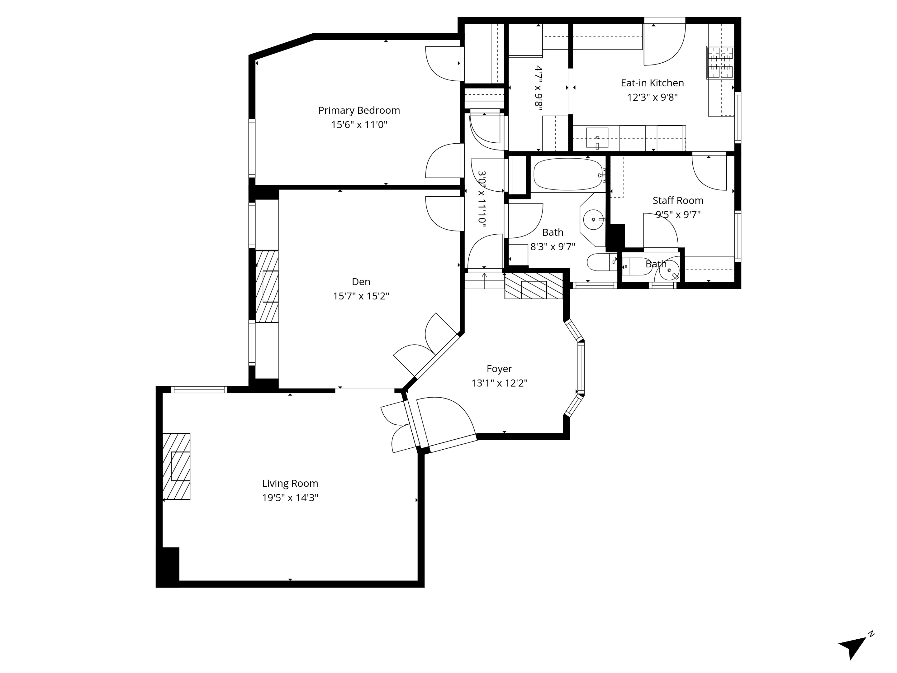
ادخل إلى بهاء الطراز الجميل في هذا الإيجار النادر "الكلاسيكي 5" في التعاونية التاريخية ما قبل الحرب، الدوريليتون.
تُعتبر الشقة 10C دراسة في الأناقة الإدواردية، مع لوحات جدارية محفوظة بشكل جميل، ومدافئ زخرفية، وأسقف بأخشاب ترفع إلى 9 أقدام و 9 بوصات في بعض الأماكن. تنقل مقاييس وسهولة تصميمها جميع من يخطو عتبتها إلى حالة من الاسترخاء والسحر - من بهوها السحري ذو الثماني أضلاع مع نوافذ باي ذات زجاج ملون وترانزومات يدوية الصنع مائلة بشكل درامي إلى المطبخ المريح الذي يتيح تناول الطعام. أكثر من مجرد مكان للإقامة، تلهم هذه الإقامة الخالدة الاستراحة والتفكير، ما ينقل جميع من يدخلها إلى عصر مضى. من السهل تخيل إدث وارتون أو أي من معاصريها من عصر الذهب وهم يجلسون في غرفة المعيشة أو يدونون الملاحظات في المكتبة، مع شمس الصباح تتراقص على مقعد النافذة.
تتوفر الشقة مؤثثة بالكامل أو جزئياً حسب الرغبة، وهي منزل يمتد على حوالي 1200 قدم مربع، مصممة حالياً كغرفة نوم رئيسية واسعة تتضمن 1BR/1.5BA بالإضافة إلى غرفة موظفين، مع غرفة معيشة رسمية وغرفة عائلية ضخمة. تعد غرفة النوم الرئيسية المواجهة للجنوب فسيحة بشكل كبير، حيث توفر خزانة عميقة ومساحة كافية لطاولات الليل وصندوق كبير للملابس. إذا كانت هناك حاجة لمزيد من أماكن النوم أو مكاتب عمل، فإن غرفة الدن وغرفة الموظفين توفر خيارات جذابة، مما يسمح للشقة بالعمل بشكل مريح كمنزل مكون من غرفتين نوم مع مكتب منفصل مخصص. تشمل الشقة غسالة ومجفف خاص بها وتستمتع بإضاءات مشمسة من الشمال والجنوب والغرب.
تم الانتهاء من بناء الدوريليتون في عام 1902 وصممه جانس وليو، ويعتبر واحداً من أكثر المباني شهرة في حي Upper West Side، المعروف بواجهته الزاهية على الطراز الجميل وتفاصيله المعمارية الرائعة. ويقول التراث المحلي إن جدران المبنى السميكة الشهيرة كانت تهدف إلى السماح للموسيقيين بالتدريب دون إزعاج جيرانهم - وهو إرث ملائم لمنزل يقع على بعد دقائق فقط من مركز لينكولن وجويلارد.
تشمل مرافق المبنى حارس بوابة بدوام كامل، وسطح مكون من أثاث مع إطلالات بانورامية، وتراس لعب مكتمل، ومخازن للدراجات والخاصة. يقع الدوريليتون في مكان مثالي بين سنترال بارك وحديقة ريفرسايد، وعلى بُعد خطوات فقط من مترو 2/3 ومتجر تريدر جو، ويقدم نمط حياة كلاسيكي في Upper West Side مع سهولة استثنائية للوصول إلى تناول الطعام والثقافة والتسوق.
Step into Beaux-Arts splendor in this rarely available “Classic 5” rental at the storied prewar cooperative, The Dorilton.
Apartment 10C is a study in Edwardian elegance, with beautifully preserved wainscoting, decorative fireplaces, and beamed ceilings that rise to 9’9” in places. The scale and ease of the layout immediately relax and charm all who pass its threshold - from the magical, octagonal foyer with stained-glass bay windows and dramatically flared handcrafted transoms to the inviting eat-in kitchen. More than just a place to stay, this timeless residence inspires repose and reflection, transporting all who enter to a bygone era. One can easily picture Edith Wharton or any of her Gilded Age contemporaries holding court in the living room or making notes in the library, with the morning sun lingering on the window seat.
Available fully or partially furnished if desired, this approximately 1,200 sq. ft. home is currently configured as an expansive 1BR/1.5BA plus staff room, with both a formal living room and a massive family room. The south-facing primary bedroom is generously proportioned, offering a deep closet and ample room for night tables and a large dresser. If additional sleeping or quarters or workspaces are needed, the den and staff room provide appealing options, allowing the apartment to function comfortably as a two-bedroom home with a separate, dedicated office. The apartment includes its own washer and dryer and enjoys sunny exposures to the north, south, and west.
The Dorilton, completed in 1902 and designed by Janes & Leo, is one of the Upper West Side’s most celebrated landmark buildings, known for its exuberant Beaux-Arts façade and remarkable architectural details. Local lore holds that the building’s famously thick walls were intended to allow musicians to practice without disturbing their neighbors—a fitting legacy for a residence just minutes from Lincoln Center and Juilliard.
Building amenities include a full-time doorman, a furnished roof deck with panoramic views, a fully contained play terrace, and bike and private storage. Ideally situated between Central Park and Riverside Park, and just steps from the 2/3 subway and Trader Joe’s, The Dorilton offers classic Upper West Side living with exceptional convenience to dining, culture, and shopping.
This information is not verified for authenticity or accuracy and is not guaranteed and may not reflect all real estate activity in the market. © 2026 The Real Estate Board of New York, Inc., All rights reserved.




