| ID # | 968446 |
| الوصف | 5 غرفة نوم ، 4 حمام ، 1 نصف حمام ، الغسالة ، آلة التجفيف ، كراج ، مكيف هواء ، مساحة الأرض: 0.95 فدان ، 5391 ft2 قدم مربع ، 501 متر مربع عمر الإدراج (DOM): 3 يومًا |
| سنة البناء | 2026 |
| الضرائب (سنويًا) | $67,924 |
| نوع الوقود | كهربائي Electric |
| نوع الحرارة | كهربائي Electric |
| مكيف هواء | تكييف هواء مركزي Central Air |
| نوع الكراج' | كراج ملحق Attached (3 car garage) |
![]() |
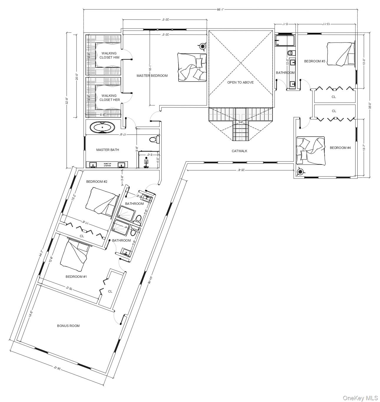
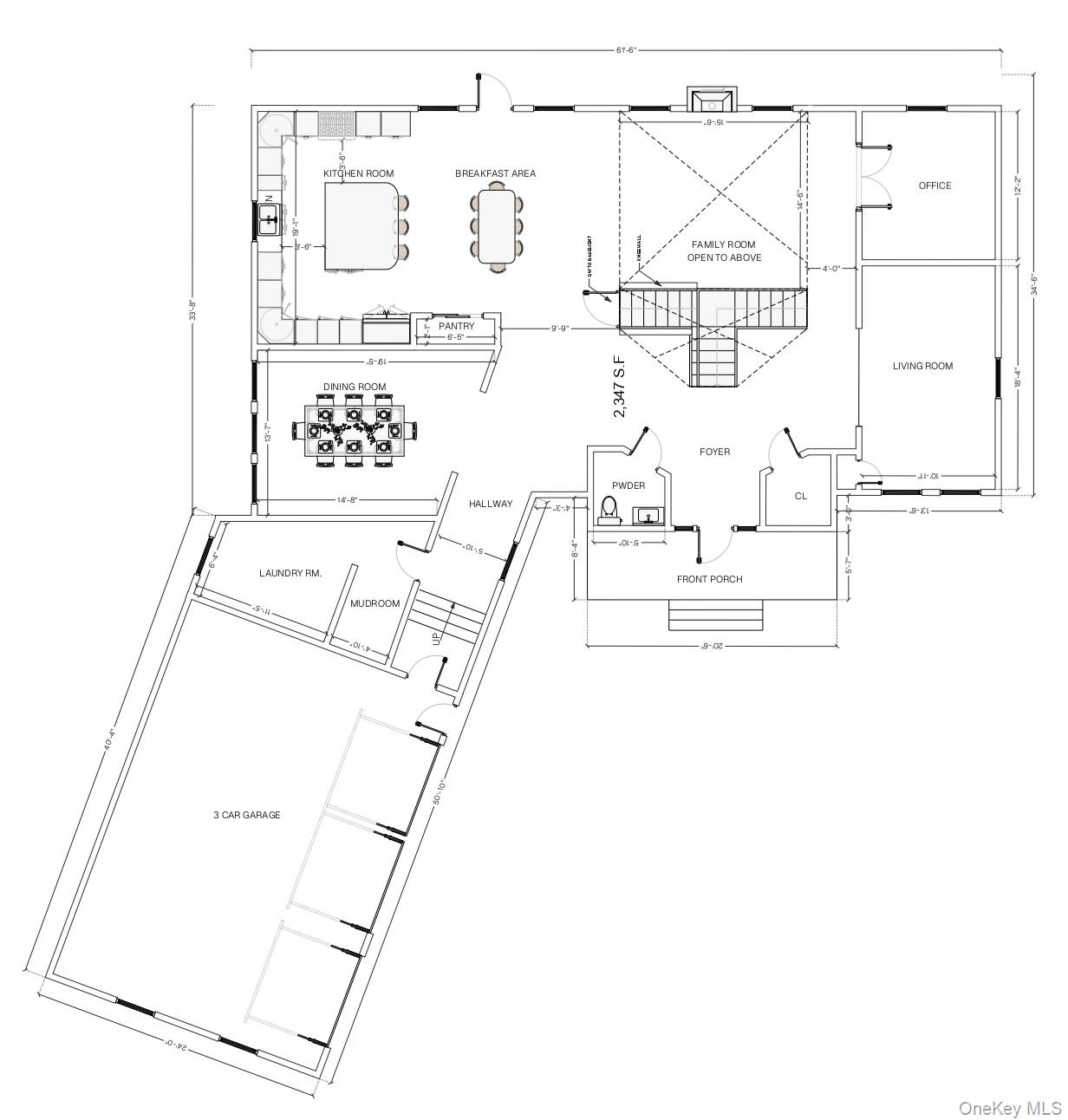
منزل استعماري جديد رائع يتكون من 5 غرف نوم و 4.1 حمام سيُبنى ليقدم رفاهية راقية وأناقة معمارية خالدة في موقع استثنائي في نهاية شارع هادئ. يتمتع بموقع مثالي على مساحة أقل من فدان واحد ويطل على المنطقة الحرجية الهادئة لمركز إديث ماسي، حيث يمتزج الخصوصية والهيبة والجمال الطبيعي. تتاح فرصة نادرة لتخصيص التشطيبات والمواد والألوان والترقيات بالكامل - مما يتيح لك تصميم منزل يعكس رؤيتك الشخصية وأسلوب حياتك. عند الدخول، يخلق درج مزدوج الجوانب مع ممر معماري نقطة محورية مذهلة. تم تصميم المنزل بشكل مدروس بارتفاعات سقف تبلغ 9 أقدام في جميع الأنحاء وسقف كاتدرائي مرتفع يبلغ 20 قدمًا في غرفة العائلة، مما يوفر مساحة معيشة واسعة ومضيئة على نطاق كبير. يضفي مدفأة بارزة طابع الدفء والأناقة على غرفة العائلة. ستتميز المطبخ الحديث الخاص بالشيف بأجهزة عالية الجودة، وخزائن مصممة خصيصًا، وأسطح عمل من الكوارتز، ومساحة عمل واسعة مثالية للتسلية ولأسلوب حياة فخم يوميًا. في الطابق العلوي، توفر غرف النوم ذات الأبعاد السخية الراحة والخصوصية، مع خيار إنهاء غرفة إضافية مصممة حسب احتياجاتك - سواء كانت صالة وسائط، أو مكتب خاص، أو استوديو للياقة البدنية. ستكون الجناح الرئيسي ملاذًا هادئًا مع إمكانية تصميم حمام مستوحى من المنتجع الصحي. تشمل الميزات الاستثنائية الإضافية: كراج يتسع لثلاث سيارات، فناء خلفي كبير لاستضافة فعاليات داخلية/خارجية بسلاسة، ومستوى سفلي كبير غير منتهي، مزود بسباكة لحمام مستقبلي وإمكانيات لا نهاية لها، موقع محتمل لمسبح في الفناء الخلفي. سيتم وضع المنزل بشكل استراتيجي مرفوعًا على العقار لتعزيز الخصوصية والحضور وجاذبية الواجهة. سيتم إعادة تصميم ممر الدخول بالكامل وإعادة تسويته. تم وضع معالم المنزل حاليا باللون الأصفر. الضرائب متوقعة بناءً على سعر القائمة ومعدل الضرائب الموحد ولا تشمل خصم STAR. فرصة نادرة لبناء مسكن فاخر في موقع مرغوب. خصص الآن وأحضر منزلك المنشود إلى الحياة.
Exquisite new 5 bedroom, 4.1 bath center hall colonial to be built offering refined luxury and timeless architectural elegance in an exceptional cul-de-sac setting. Perfectly positioned on just shy of one acre and backing the serene wooded grounds of the Edith Macy Center, this residence blends privacy, prestige, and natural beauty. A rare opportunity exists to fully customize finishes, materials, colors, and upgrades — allowing you to curate a home that reflects your personal vision and lifestyle. Upon entry, a dramatic double-sided staircase with an architectural catwalk creates a breathtaking focal point. Thoughtfully designed with 9-foot ceilings throughout and a soaring 20-foot cathedral ceiling in the family room, the home offers grand scale and open, light-filled living spaces. A statement fireplace anchors the family room, creating warmth and sophistication. The state-of-the-art chef’s kitchen will feature premium appliances, custom cabinetry, quartz countertops, and expansive workspace ideal for entertaining and everyday luxury living. Upstairs, generously proportioned bedrooms provide comfort and privacy, with the option to finish a bonus room tailored to your needs — whether a media lounge, private office, or fitness studio. The primary suite will serve as a tranquil retreat with spa-inspired bath potential. Additional exceptional features include: 3-car garage, expansive rear patio for seamless indoor/outdoor entertaining, large unfinished lower level, plumbed for future bath and endless possibilities, pool site potential in the rear yard. The home will be strategically set back and elevated on the property to maximize privacy, presence, and curb appeal. Driveway will be completely redone and re-pitched. House is currently staked out in yellow. Taxes are projected based on list price and consolidated tax rate and do not include STAR discount. A rare opportunity to build a luxury residence in a coveted location. Customize now and bring your dream home to life.
This information is not verified for authenticity or accuracy and is not guaranteed and may not reflect all real estate activity in the market. Listing courtesy of Mark Seiden Real Estate Team © 2026







