| ID # | RLS20072427 |
| الوصف | 3 غرفة نوم ، 2 حمام ، الغسالة ، آلة التجفيف ، 3 شقة في المبنى ، يحتوي المبنى على 4 طابق عمر الإدراج (DOM): 13 يومًا |
| سنة البناء | 1899 |
| رسوم الصيانة | $892 |
| حافلة عامة | 2 دقيقة بعيدا عن حافلة عامة B57 |
| 5 دقيقة بعيدا عن حافلة عامة B61 | |
| مترو | 6 دقيقة بعيدا عن المترو F, G |
| محطة القطار | 1.3 ميل إلى محطة قطار "Atlantic Terminal" |
| 2.7 ميل إلى محطة قطار "Nostrand Avenue" | |
![]() |
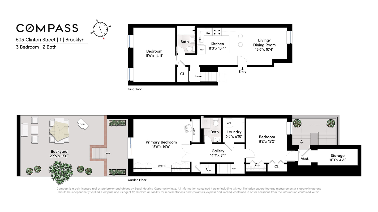
تقدم هذه الشقة المزدوجة بعناية ترتيبها مساحة ومرونة شقة المدينة مع سهولة العيش في تعاونية - وكل ذلك مع تكاليف شهرية منخفضة بشكل ملحوظ. إنها فرصة نادرة في كارول غاردنز، حيث تجمع بين التصميم العملي، ومساحة خارجية خاصة، وقيمة استثنائية.
تتميز الطابق العلوي بتصميم مفتوح ومشرق مع مطبخ ذواقة مصمم بعناية ومنضدة طعام كبيرة تتدفق بسهولة إلى منطقة المعيشة، مما يجعل المساحة مثالية للمعيشة اليومية واستقبال الضيوف. في الجزء الخلفي من المنزل، تطل غرفة النوم الرئيسية على الحديقة وتكملها حمام كامل.
يقدم الطابق السفلي، الذي يمكن الوصول إليه عن طريق درج داخلي أو مدخل خاص تحت الدرج، تنوعًا ممتازًا. مصمم حاليًا مع غرف نوم إضافية، وحمام كامل، وغرفة غسيل مخصصة مزودة بغسالة ومجفف، يمكن لهذا الفضاء بسهولة تلبية مجموعة متنوعة من الاحتياجات - سواء كانت غرف ضيوف، أو مكتب منزلي، أو غرفة ألعاب، أو منطقة معيشة ثانوية. تساهم الخزائن الوفيرة والتخزين الإضافي تحت الدرج في وظيفة المنزل.
تفتح الأبواب الزجاجية في الطابق السفلي مباشرة على الحديقة الخاصة، مما يوفر مساحة خارجية هادئة لتناول الطعام، أو الاسترخاء، أو البستنة - وهي امتداد قيم للمنزل وميزة مطلوبة في بروكلين.
تقع الشقة في واحدة من "كتل الأماكن" الساحرة في كارول غاردنز التاريخية، على بُعد صف واحد فقط من شارع كورت، بالقرب من المطاعم والمحلات التجارية في الحي، وقطارات كارول ستريت F وG، ومؤسسة PS 58، وخيارات النقل المريحة.
إنها منزل مرن وجاهز للانتقال مع فائدة إضافية تتمثل في المساحة الخارجية الخاصة.
Read the English version or choose another language
This information is not verified for authenticity or accuracy and is not guaranteed and may not reflect all real estate activity in the market. © 2026 The Real Estate Board of New York, Inc., All rights reserved.







